Het saaie groen rond Kleiburg

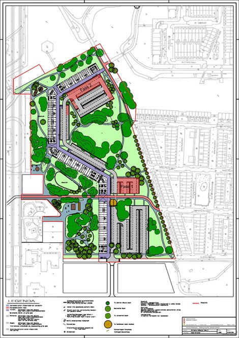
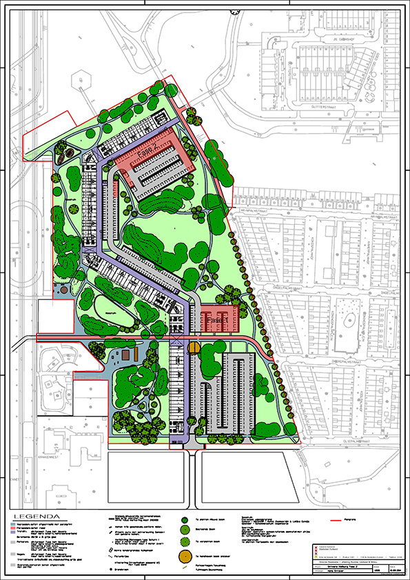
Klusflat Kleiburg krijgt 400 en later wellicht 500 parkeerplaatsen, afhankelijk van de behoefte, allemaal keurig gelegen in het groen aan de galerijzijde van de flat. De garage die vlakbij was, die van Kraaiennest, werd gesloopt en veranderd in enorm grasperk, waarop ooit drie blokken woning met bedrijfjes aan een plein worden gerealiseerd. Dat is tenminste het plan, zoals het ook ooit het plan was om het gehele Bijmermuseumgebied in de originele stat in stand te houden. Inmiddels zijn de daartoe behorende galerijflats Grunder en Koningshoef allang vervangen door laagbouw en middenhoog en rukt het autoblik steeds verder het parkgebied in, terwijl het originele ontwerp garages aan verhoogde dreven heilig had verklaard. Het economisch belang stoort zich niet aan idealen, afspraken en cultureel erfgoed. En er valt natuurlijk een toekomst te winnen, zoals de politiek niet ophoudt te onderstrepen. Zeker de mens van nu wenst de auto voor de deur. Daarmee werf je klanten. Dat was ook de geharnaste overtuiging van de projectontwikkelaars achter Klusflat Kleiburg, die het gebouw alleen van de sloop wilde redden als het Stadsdeel haar die wervingskracht gunde. Ja dan nee sloop werd zo gekoppeld aan de toekomst van het Bijlmermuseum-gebied, dat er natuurlijk zonder Kleiburg nog veel beroerder had voorgestaan en wat de oorspronkelijke eigenaar Rochdale, de sloper, geheel worst was. Jammer is natuurlijk dat de potentiële kopers van de kluswoningen geheel buiten het parkeerprobleem werden gehouden. De participatie-samenleving is alleen van node als de hoofdbesluiten reeds zijn genomen. De kopers mochten slechts meepraten over de inrichting van het nieuwe parkeergebied.

ontwerp_kleiburg_voor_500_parkeerplekken_en_bijbehorende_faseringMeepraten mochten ze ook over het ontwerp van het andere deel van het de flat omringende groen, waar weer geen inbreuk mocht worden gedaan op het meer dan 50 jaar oude Bijlmerprincipe, dat het groen zich moet voegen naar de Engelse landschapsstijl met kronkelende paden, lichte glooiingen en geconcentreerde bomengroepen ofwel een gesteriliseerd bos met uitzicht rondom. En daaraan werd nog een begrip toegevoegd: sociale veiligheid, de mantra van de moderne stedenbouw, resulterend in het verwijderen van struiken en ander ondergroeisel en het kappen van bomen die de transparantie belemmeren. De vijand moet zichtbaar blijven, het avontuur uitgebannen. Geen plekken om te schuilen en stoute dingen te doen. Tezamen de nieuwerwetse steriliteit van het Bijlmermuseum-gebied. Je bent er overal, en zeker ook vanuit hoogte der gebouwen, bedreigend zichtbaar en vaak geheel alleen, hoe mooi het ook is en hoe aangenaam ook om er doorheen te wandelen. Je gaat er echter niet hangen en verzamelen. Je wordt niet aangespoord je eigen ruimtes te scheppen. Bankjes blijven vooral onbenut. Ze staan bij niets en kijken naar niets. Ze staan er omdat er blijkbaar bankjes in het groen geplaatst moeten worden,zoals ook in het Bijlmerpark, waar er aangesloten rijen van staan, vooral op bruggen, waar ze ongebruikt heerlijk kunnen zonnen. En de bankjes die rond Kleiburg geplaatst worden, zijn van de ‘standaardmaterialisatie- volgens het HBIOR’, zoals ze voor het gehele gebied voorgeschreven zijn, ofwel: keiharde stalen. slechtzittende en lelijke bankjes met gaatjes en een beugel in het midden zodat je er niet op kan liggen.

bankje-grubbehoeveGelukkig krijgt het Kleiburg-groen ook nog een speeltuintje met schommel en lelijk eendje (terwijl een grote speeltuin, Ford Kraaiennest, dichtbij is), een sporttuintje met stalen pinpongtafel, een voorjaarstuin met bloemen en een nutstuin, maar geen ruimte voor een bak koffie, een biertje, een plasje doen, hulp bij een ongelukje of even schuilen voor de regen. Niks geborgenheid, niets nieuws onder de zon. Voor enig ongewoon buitenplezier staat er nog een zeer forse, betonnen hellingbaan klaar, aan de kop van de flat, ooit bedoeld om mensen van het maaiveld naar de binnenstraat op 1-hoog te brengen. Ze is niet alleen een Bijlmer-icoon, maar ook een prikkelaar van fantasie. Je zou haar deels kunnen laten ‘verloederen’ tot bijzondere rotstuin of historisch artefact, en deels tot onderkomen van het BijlmerMuseum, maar over andere mogelijkheden dan sloop is niet nagedacht.

Een Reactie op “Het saaie groen rond Kleiburg

Plaats een reactie